Tổng Quan
Zeitgeist City là khu đô thị đẳng cấp ngay cửa ngõ phía Nam Tp.HCM, trải dài trên trục đường Nguyễn Hữu Thọ & Lê Văn Lương. Dự án có địa thế sông nước đan xen tuyệt đẹp với các sản phẩm cao cấp: Nhà phố, shophouse, biệt thự, căn hộ, văn phòng…. Được đầu tư và phát triển bởi GS – Tập đoàn đa ngành top 10 tại Hàn Quốc, khu đô thị này dự kiến sẽ sánh ngang Phú Mỹ Hưng và hơn thế nữa.
Điểm Khác Biệt Tại Khu Đô Thị GS ZeitGeist City
– Khu đô thị quy mô 300ha giữa lòng khu Nam Sài Gòn – Cách Q1 9km
– Địa thế sông nước giao hòa độc đáo trải dài trên trục đường Nguyễn Hữu Thọ
– Quy tụ đơn vị phát triển dự án chất lượng Quốc Tế: GS Hàn Quốc, Ong&Ong…
– Đa dạng các loại hình đầu tư: Căn hộ, shophouse, nhà phố, biệt thự, văn phòng, officetel
Cập Nhật Tháng 4/2023
– Giai đoạn 1 – ZEIT RIVER COUNTY 1: 438 căn nhà phố – shophouse, biệt thự đã hoàn thiện và bàn giao
– Các sản phẩm sang nhượng đang có giá:
- Nhà phố 7×17 – 3 tầng + tum: 15,8 tỷ
- Shophouse 7×18 – 4 tầng: 20 tỷ
- Song lập 9,5×17 – 3 tầng: 20 tỷ
- Đơn lập: 10×20 – 3 tầng: 28,9 tỷ
– Giai đoạn 2 – Zeit Edu County: dự kiến triển khai trong 2023
Quý Anh/Chị quan tâm vui lòng để lại thông tin: chúng tôi sẽ gửi bộ tài liệu sớm nhất có thể
Đăng ký theo form để nhận ngay
– Bộ tài liệu dự án
– Quy trình booking – đặt cọc và các phương án thanh toán
– Xem nhà mẫu – thực tế vị trí dự án
ZEITGEIST CITY NHÀ BÈ
Thông Tin Tổng Quan
Chủ Đầu Tư: GS E&C
Đơn vị xây dựng: Vietnam GS Industry
Vị trí dự án: Đường Nguyễn Hữu Thọ, Xã Phước Kiểng và Nhơn Đức, Huyện Nhà Bè
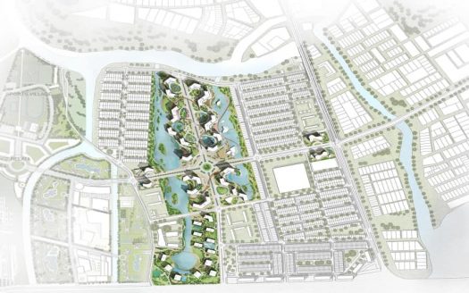
Quy mô: 349,5ha bao gồm 4 phân khu: Linaer City, Gateway City, The Peninsula, Park City
- 760 biệt thự
- 2600 nhà phố
- 770 Căn hộ Mid-Rise
- 13000 căn hộ cao tầng từ 1 đến 4pn
Tiện ích:
- 19 trường học, trung tâm thương mại hyperMart, công viên thể thao, công viên ven sông, trung tâm văn hóa – giải trí…
Tiến độ mở bán: Mở bán giai đoạn 1 (9/2019) với 500 căn nhà phố, shophouse, biệt thự
Tiến độ dự án: Đã bàn giao giai đoạn 1 – chuẩn bị giai đoạn 2
Pháp lí: sở hữu vĩnh viễn
Thời gian bàn giao: Bàn giao phân khu đầu tiên Quý 4/2021, toàn khu 2025
Giá bán: từ 15 tỷ/căn

Vị Trí Zeitgeist GS Metro
Địa thế vàng – Hội tụ tinh hoa
Tọa lạc tại vị trí thuộc Xã Phước Kiểng, Nhơn Đức, Huyện Nhà Bè Thành Phố Hồ Chí là cửa ngõ vào KĐT Hiệp Phước với hệ thống giao thông liên kết vùng vô cùng thuận lợi trên các trục đường chính Nguyễn Hữu Thọ, đường Lê Văng Lương, đường Nguyễn Bình cho nên cư dân sinh sống và làm việc tại đây dễ dàng di chuyển đến các quận, huyện lân cận rất thuận tiện và nhanh chóng mang lại phồn vinh và phát triển.
Tiềm năng vị trí dự án:
Khu trục đường Nguyễn Hữu Thọ với quy hoạch giàu tiềm năng phát triển trong tương lai khi phía Nam về cuối đường là khu đô thị cảng Hiệp Phước, đối diện là dự án Lavila Kiến Á và Nine South của Vinacapital, dự án khu đô thị Phú Mỹ Hưng giai đoạn 2 với quy mô 95 hecta, Phú Mỹ Hưng giai đoạn 1 với quy mô 409 hecta, với lộ giới 60m kế hoạch cùng tuyến metro số 4 nối dài đến phía Bắc thành phố, tuyến đường này được quy hoạch đại lộ Bắc – Nam Sài Gòn trong tương lai.
Ngoài ra các dự án hạ tầng giao thông khác cũng đã được thành phố chủ trương phê duyệt như cầu qua Kênh Tẻ nối vào đường Tôn Đản, cầu Nguyễn Khoái nối vào đường D1. Nút giao thông cầu vượt Hầm chui Nguyễn Văn Linh – Nguyễn Hữu Thọ.
Thiết Kế Chi Tiết Các Sản Phẩm Tại ZeitGeist City Nhà Bè
Nhà Phố Liền Kề:
- Diện tích: 7×17 – DTXD: 270m2
- Kết cấu: 1 trệt + 3 lầu
- Chức năng: nhà ở
- Xây dựng: Hoàn thiện bên ngoài, giao thô bên trong
- Giá bán: Từ 15 tỷ
- Đường trước mặt từ 12 đến 15m
- Pháp lí: Sổ hồng sở hữu lâu dài
Biệt Thự Song Lập:
- Diện tích: 10×20 DTXD: 270m2
- Kết cấu: 1 trệt + 2 lầu
- Chức năng: nhà ở
- Xây dựng: Hoàn thiện bên ngoài, giao thô bên trong
- Giá bán: Từ 20 tỷ
- Đường trước mặt từ 12 đến 15m
- Pháp lí: Sổ hồng sở hữu lâu dài
Biệt Thự Đơn Lập:
- Diện tích: 12,5×20; 15×20 DTXD: 324m2
- Kết cấu: 1 trệt + 2 lầu
- Chức năng: nhà ở
- Xây dựng: Hoàn thiện bên ngoài, giao thô bên trong
- Giá bán: Từ 29 tỷ
- Đường trước mặt từ 12 đến 15m
- Pháp lí: Sổ hồng sở hữu lâu dài
Quy mô dự án? Hệ thống tiện ích nội khu có gì hấp dẫn
TIỆN NGHI CAO CẤP KHÉP KÍN
Mỗi ngày tại Zeitgeist City là một ngày hưởng thụ những giá trị đẳng cấp nhất của lối sống tinh hoa.
Nơi dành riêng cho những phút giây yêu thương vẹn đầy. Nơi cộng đồng tinh hoa tận hưởng cuộc sống thư giãn, nghỉ ngơi
Quy mô : 349,5 ha
Không gian cây xanh: 95ha
Hệ thống tiện ích:
| 1. Hồ cảnh quan Ocenia 2. Đảo thư giãn 3. Mini Bar 4. Đồi thiền 6. Khu vui chơi trẻ em 7. Khu thể thao ngoài trời 8. Phòng Gym 9. Hồ bơi | 10. Hồ bơi trẻ em & Zaccuzi 11. Sân vườn mở – BBQ 13. Vườn thư giãn 14. Quảng trường trung tâm 15. Khu đọc sách 16. Đường chạy bộ 17. Hệ thống camera – bảo vệ 24/24 |





Cập Nhật Tháng 4/2023
– Giai đoạn 1 – ZEIT RIVER COUNTY 1: 438 căn nhà phố – shophouse, biệt thự đã hoàn thiện và bàn giao
– Các sản phẩm sang nhượng đang có giá:
- Nhà phố 7×17 – 3 tầng + tum: 15,8 tỷ
- Shophouse 7×18 – 4 tầng: 20 tỷ
- Song lập 9,5×17 – 3 tầng: 20 tỷ
- Đơn lập: 10×20 – 3 tầng: 28,9 tỷ
– Giai đoạn 2 – Zeit Edu County: dự kiến triển khai trong 2023
Quý Anh/Chị quan tâm vui lòng để lại thông tin: chúng tôi sẽ gửi bộ tài liệu sớm nhất có thể
Đăng Ký Nhận Thông Tin
Cập nhật tiến độ dự án Zeitgeist City Nhà Bè tháng 4/2023
Phare 1 của dự án đã hoàn thiện và bàn giao cho khách hàng





























































































































































































































































